wyszukaj ofertę
Nie znalazłeś oferty ? zostaw nam Swoje dane, a my znajdziemy ją dla Ciebie. więcej » Zgłoś ofertę zostaw nam Swoje dane, nasz agent umówi się z Tobą na spotkanie. więcej »
wyłączność
opis nieruchomości
| księga wieczysta: | jest |
| stan prawny: | własność |
| liczba pokoi: | 2 |
| liczba pięter: | 5 |
| piętro: | 1 |
| standard: | developerski |
| stan: | do wykończenia |
| wysokość czynszu: | 500 PLN |
Budynek oddany do użytkowania w 2025 roku!
Kupujący nie płaci podatku PCC!
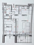
Do sprzedania mieszkanie składające się z salonu z aneksem kuchennym, sypialni, łazienki oraz balkonu; do mieszkania przynależy miejsce postojowe oraz komórka lokatorska (dodatkowo płatne)
Mieszkanie w standardzie deweloperskim. Ściany i sufity pokryte tynkiem gipsowym, maszynowym. Na podłodze wylewka betonowa do indywidualnego wykończenia. Instalacja elektryczna wyposażona w gniazdka i włączniki, we wszystkich pomieszczeniach. Grzejniki z termostatami. Drzwi wejściowe do mieszkań antywłamaniowe klasy C, domofon. Okna PCV z roletami zewnętrznymi sterowanymi elektrycznie. Balkon wykafelkowany, z balustradą szklaną.
Ogrzewanie oraz ciepła woda miejskie. Możliwość podłączenia telewizji kablowej, internetu oraz telefonu stacjonarnego od wszystkich wiodących dostawców.
Do ceny mieszkania należy doliczyć 60 000 zł za 2 miejsca postojowe i komórkę lokatorską.
Budynek wykonany jest z energooszczędnych bloczków docieplonych styropianem, co zapewni mieszkańcom duże oszczędności w ogrzewaniu. Dach płaski docieplony styropianem. W każdym z budynków znajduje się cicha winda elektryczna, zatrzymująca się na każdej kondygnacji, również w piwnicy- garażu podziemnym. Dla podniesienia komfortu mieszkańców centralne ogrzewanie jak i ciepła woda pochodzi z sieci miejskiej. Poza ogrzewaniem oraz wodą w mieszkaniach rozprowadzone są również instalacje elektryczna, telewizyjna, telefoniczna, internetowa, domofonowa. Części wspólne budynku (garaże, klatka schodowa, korytarze) są w pełni wykończone- ściany i sufity malowane, na posadzkach płytki ceramiczne, balustrady stalowe, malowane proszkowo. Otoczenie jest zagospodarowane małą architekturą, zielenią, a drogi utwardzone i wyłożone kostką brukową, cały teren ogrodzony. Do wyłącznej dyspozycji właścicieli mieszkań będzie park przy osiedlu.
Bezpłatnie pomagamy w uzyskaniu kredytu na zakup wszystkich nieruchomości.
Zapraszam do kontaktu w celu zapoznania się ze szczegółami oferty.
galeria
Dane o ofercie według informacji zgłaszającego mogą odbiegać od stanu faktycznego. Biuro nie ponosi odpowiedzialności za niezgodność danych z rzeczywistością. Oferta może być w danym momencie nieaktualna. Oferta może podlegać zmianie i nie stanowi oferty w rozumieniu art.66 i następnych K.C.
« powrót
ZADAJ PYTANIE
*Wyrażam zgodę na przetwarzanie moich danych osobowych, zgodnie z treścią ustawy z dn. 29 sierpnia 1997 r. o ochronie danych osobowych (Dz. U. z 1997 r. Nr 133 poz. 883)
wysyłanie


