Domy na sprzedaż

Nowy dom wolnostojący (stan deweloperski), parterowy z poddaszem użytkowym, niepodpiwniczony. Składa się z:

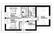
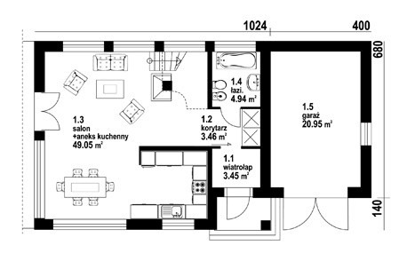
  • parter: salon + aneks kuchenny, łazienka, garaż, korytarz, wiatrołap (możliwość wydzielenia dodatkowej sypialni);
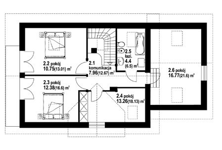
  • poddasze: 3 sypialnie, mniejszy pokój lub garderoba, łazienka.

Budynek budowany z bloczków wapienno- piaskowych SIL-PRO, kryty dachówką ceramiczną. Ocieplony z wykonaną elewacją (tak jak na wizualizacji). Okna PCV, drzwi wejściowe antywłamaniowe, brama garażowa. Wewnątrz ściany pokryte tynkiem maszynowym, na podłodze wylewki. Rozprowadzone wszystkie instalacje (prąd, woda, kanalizacja, gaz, centralne ogrzewanie).

foto1 rzut parteru rzut piętra
Strona ma charakter informacyjny i nie stanowi oferty w rozumieniu art.66 i następnych K.C.. strony internetowe - FENIKS   Fantasista - Fotolia.com